重庆万科陆海国际中心
-
项目地址
重庆市
-
建设单位
万科集团
-
建筑设计
KPF
-
建筑面积
520420㎡
-
建筑高度
458.2m
在城市新地标建筑中,弗思特作为外立面顾问单位参与了其中的30%。万科重庆天地,作为嘉陵江畔的新地标建筑,便是其中之一。

/ 项目简介:一叶帆船,屹立于嘉陵江畔 /
重庆万科天地项目坐落于重庆市主城区的化龙桥片区,北邻嘉陵江、南邻华盛路、东邻嘉华大桥、西侧为重庆天地高住宅区由TP1塔楼、TP2塔楼、TP3塔楼及商业裙房组成。其中,TP1塔楼建筑高度为255.8m、TP2塔楼建筑高度458m、TP3塔楼建筑高度181m,商业裙楼地上7层,将TP2、TP3塔楼连接为一个整体。
弗思特本次设计范围为TP2塔楼、TP3塔楼及商业裙楼。该项目是由万科投资建设的第一个大型商业+办公+酒店+公寓综合体,TP2塔楼是万科目前为止建筑高度最高的一个项目,同时也是重庆第二大高楼。

重庆,在群山环绕之中,又处于长江与嘉陵江的交汇处。重庆万科中心位于嘉陵江边,为美国KPF建筑师事务所担纲建筑设计,建筑造型以曾经横渡长江、嘉陵江水的帆船为灵感,以高低错落有致的三栋塔楼和商业裙楼形成扬帆的帆船造型。建筑外形线条轻盈、优雅,项目建成后形似一叶帆船屹立在嘉陵江畔。

重庆是国家历史文化名城,1189年宋光宗赵惇先封恭王再即帝位,自诩“双重喜庆”,重庆由此得名,而建筑师对于塔楼的立面设计灵感也是来自于“双重喜庆”。塔楼的立面纹理形似“囍”字,在重庆灯光璀璨的夜景里,在白雾朦胧的天气中,在阳光照耀下,在重庆的各种情境中,这个符号都显示出强烈的图形主题,几何图案的层次与变化也突显了塔楼的现代感、未来感的线条与外形。

/ 外立面形体分析 /
TP2塔楼
TP2塔楼平、立面均为弧形。平面由两部分组成,分别为弧线段与封边墙。立面从25层进行分段,25层以上区域向内倾斜,25层以下区域向外倾斜。幕墙设计采用直板块拟合曲面的形式,以达成最终建筑效果的实现。


根据对建筑模型的分析,TP2塔楼弧面区域单元板块均为直板。封边墙区域局部位置单元板块存在四点不共面的情况,最大翘曲点约10mm左右。对于四点不共面位置,采用直板块冷弯加工处理,实现双曲面拟合效果。

TP3塔楼
TP3塔楼平面建筑外轮廓由弧形与直面组成,立面上不存在角度变化。TP3塔楼采用直板块以实现最终的建筑外立面效果。


/ 系统深化设计 /
TP2塔楼
塔楼立面上主要幕墙形式为双喜标准单元式玻璃幕墙,该幕墙形式由横向6个分格,竖向4层楼层,共24个单元板块组成。双喜区域中间位置设置有两个线条元素,起到双喜图案连接的作用。每个完整的双喜图案在其上下交接位置(每四层)横向分格存在错缝的情况。

双喜标准单元式幕墙在平面上主要分布在弧段区域,根据平面图显示,建筑弧形轮廓存在3种不同直径:其中弧段1同弧段4、弧段2同弧段5、弧段3同弧段6。
由于每层分格划分一致,进行曲面拟合的直板板块之间实际存在3种角度关系。其中弧段2(弧段5)区域板块夹角(176°)相对弧段1(弧段4)(178.9°)、弧段3(弧段6)区域夹角角度相差较大(179°),弧段1(弧段4)与弧段3(弧段6)区域板块夹角角度基本相近,经分析后,在设计时双喜单元板块公母立柱只考虑2套型材便能适应此弧段区域的角度变化。


建筑轮廓几何平面

平面角度分布示意

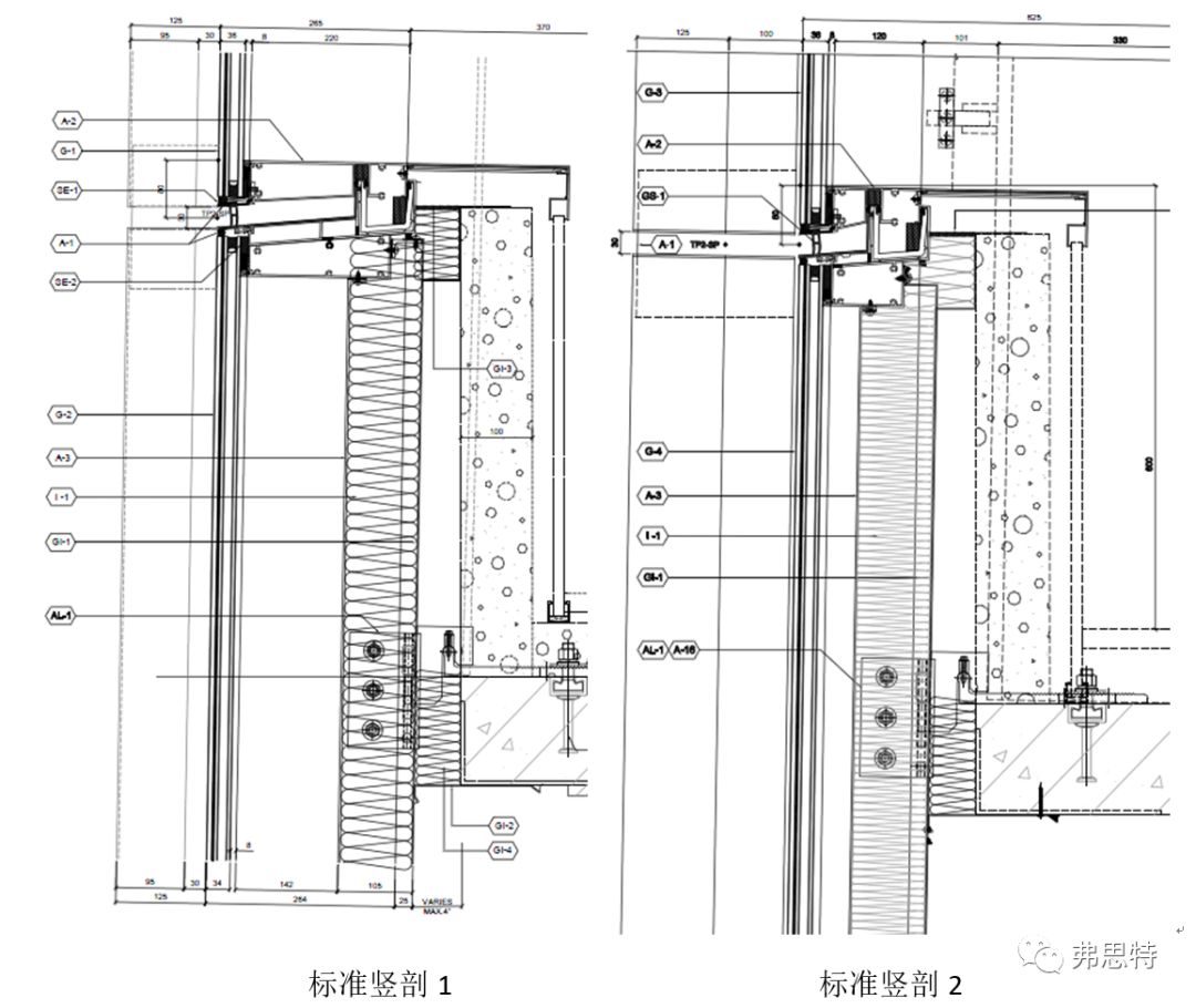
标准横剖图
塔楼建筑立面轮廓竖向存在角度变化,室内横梁与玻璃面板间的关系根据室内效果的要求不同存在两种方案:
方案1:横梁垂直于玻璃面板,横梁顶、底面为斜面;
方案2,横梁不垂直与玻璃面板,横梁顶底面保持水平。
方案1在设计时不需要考虑横梁跟随建筑立面轮廓的变化,横梁构造设计相对较简单,通常考虑一套型材就能满足;方案2在设计时横梁需考虑建筑立面轮廓的变化,采用分体式横梁设计或者将每层立面轮廓与水平夹角进行统计、分析,确定设计多种截面型材模具以满足室内效果的需要。
根据与建筑师多次沟通与对比,本项目采用方案1的形式。
横梁设计不仅需要考虑建筑室内效果的要求,还需考虑功能要求:
a、单元式幕墙水密性、气密性设计:本项目为超高层项目,结合当地的气候特征,考虑建筑室外风压变化较大、且相对一般高度建筑外部环境更恶劣。在系统设计过程中,对单元式幕墙公、母立柱及上下横梁水密线位置的插接翅构造进行优化,避免单元板块在加工工程中,公立柱下端插接翅及胶条被破坏,并在保证相邻单元板块在现场安装完成后,其胶条能有效的依附在插接翅上并形成交圈密封。同时,为进一步减少雨水进入单元式上横梁水槽内的可能性,及保证水槽内少量雨水的有效排放,本项目采用隐藏式排水设计。
b、结构垂直变形、温差变形、自重变形、板块的加工、组装及安装误差以及其他不利因素对板块插接位移空间的影响。
c、每层建筑立面轮廓与水平线的夹角对上横梁排水剖度的影响:根据对建筑立面轮廓的分析,自25F以上建筑轮廓向内倾斜,25层以下区域向室外倾斜。向内倾斜角度变化区间为90°~86.5°,向外倾斜角度变化区间为90°~91.1°。外倾时,单元板块上横梁排水处于有利状态,故本项目仅考虑内倾时,内倾角度对单元上横梁排水坡度的影响。

双喜图案每四层交接位置,上下横向分格存在错缝。此处,单元板块交接位置上下横梁存在退台且存在一个板块跨越同时位于两个板块之上的情况。通过分析平面弧形轮廓半径的变化以及结合建筑立面轮廓,可知退台位置最大的区域,在立面上位于建筑塔冠区域、在平面上位于弧段2及弧段5部分。
本项目转换层单元板块上下横梁前后最大进出值为26mm(图一),转换层下单元板块上横梁考虑采用分体式设计(图二),由分离式水槽料及分离式横梁组成。分离式水槽可根据转换区上层板块下横梁投影到分离式上横梁水槽内对应位置进行布置(图一),分离式上横梁水槽宽度为分离式水槽料宽度+最大进出差值,便于分离式水槽可在此区域空间内能灵活安装。
因为分离式水槽为独立式构件,大大的提高了其加工的灵活性,且在工厂内与分离式上横梁组装到一起,其加工质量及防水措施也可以得到有效的保证。此区域的单元板块在现场可同标准区域的单元板块安装形式一样,保证了现场的安装效率及施工质量。

图一
对于封边墙位置四点不共面板块,本项目考虑冷弯设计,板块的龙骨考虑采用空间框架的形式,玻璃面板考虑采用直板玻璃在工厂冷弯处理(如图二所示)。同时为防止玻璃面板冷弯处理后导致应力集中,从而提高玻璃的自爆率,在设计过程中,采用有限元受力计算软件,考虑最不利工况下对冷弯后的玻璃进行受力情况分析,从设计上保证方案的可实施性及安全性。


图二
TP3塔楼
根据分析平面建筑外表皮轮廓,可知TP3塔楼幕墙由直面幕墙与弧面幕墙组成,其中弧面区域根据圆弧半径的不同,单元板块公母立柱存在两种情况,故TP3塔楼幕墙单元板块公母立柱共存在3种情况。


TP3塔楼每2层交接位置,层间区域面板为金属板且相对玻璃面板完成面内退80mm。立面竖向装饰条每间隔3个横向分格设置,连续跨度2个楼层;每2层交接位置,装饰条错位。弧面区域相同半径弧段,单元板块采用相同的公母立柱料。层间面板内退部分板块,公母立柱料在层间内退高度考虑铣加工处理。


在系统深化设计过程中,我们不仅基于项目整体角度来考虑幕墙系统的设计,保证项目外观效果、满足性能要求、控制成本。同时我们通过对原幕墙方案、建筑相关资料进行梳理,也基于幕墙的设计角度,从建筑安全、建筑效果、建筑设计、结构设计及其他专业相关等各专业角度,提出了很多有利于项目的优化建议,均得到采纳。同时,在设计阶段为项目后期规避掉了大量的潜在风险。
一艘扬帆起航的帆船,一段“重庆”名字由来的历史,一个新时代建筑师的思想,一个众口称赞的建设单位。城市与设计的摩擦,历史文化与新技术的碰撞,重庆万科中心诞生在这样的环境下,蕴含历史底蕴,又不失新时代的风采,背靠历史,面向未来。弗思特很高兴能为这样一个项目出一份力,并希望我们的技术可以服务于更多项目。