深圳华为岗头人才公寓
-
项目地址
深圳市
-
建设单位
华为投资控股有限公司
-
建筑设计
巴马丹拿集团国际顾问有限公司
-
建筑面积
约70万㎡
华为岗头人才公寓

▲ 全景效果图
华为岗头人才公寓项目位于深圳市龙岗区坂田街道,分东、西两区工程,项目总建面约70万㎡。其中公寓面积40多万㎡,地下面积20多万㎡。除了38栋住宅外,还配套建设幼儿园、文化室、社康中心、老年人日间照料中心、公交首末站、商业等。

▲ 项目总平面图
项目位于坂田岗头水库边界,依水而建,规模庞大,是理想的休闲居住生活区,由远及近,立面科技感与精致感铺面而来。
玻璃盒子窗墙系统,辅以隐立柱玻璃栏杆,搭配山墙铝板幕墙系统,在满足节能要求的同时,营造立面简约精致的美感。

▲ 立面效果
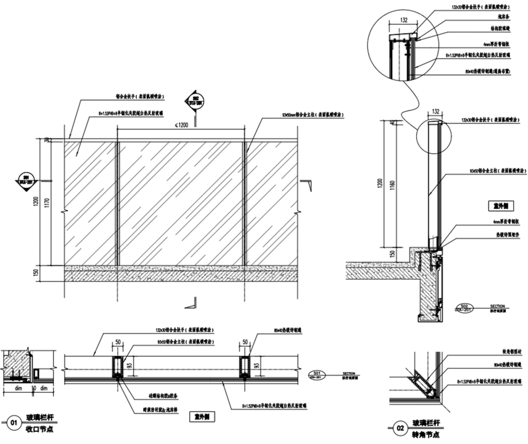
玻璃盒子窗墙系统方案历经多轮修整,最终确定使用铝合金外开窗,双银Low-e中空钢化玻璃,层间装饰铝合金线条,室内采用夹胶玻璃作为护窗栏杆。

▲ 节点示意
阳台玻璃栏杆,采用8+1.52PVB+8mm半钢化夹胶超白热反射玻璃,93*50mm铝合金立柱,通透大气。


▲ 实景图
商业立面主要为多种类玻璃幕墙系统、铝板幕墙系统、石材幕墙系统,配以横向/竖向装饰线条,将商业的不同空间做了区分,加之圆弧玻璃幕墙及玻璃肋、金属屋面、外搭铝合金格栅在立面进行点缀,在方正之中增添一抹别致之意。


项目雨蓬采用铝板雨蓬系统,有组织向内排水。


▲ 实景图
格栅系统位于商业走廊外侧,采用3mm铝合金,亮色表面处理点缀外墙。


▲ 实景图
该项目于2020年9月动工,项目时间跨度较长,服务内容繁多,如今外墙装饰已基本完成,即将交付。将进一步助力华为公司扎根深圳、吸引人才、留住人才,保障人才安居乐业,为深圳打造科技人才集聚高地,为深圳加快实现创新驱动发展贡献力量。
FORCITIS弗思特有幸成为本项目幕墙顾问,在项目全生命周期中提供多方位一体化服务,为项目商业、塔楼、幼儿园等提供幕墙顾问咨询及招标图设计等服务。设计团队从方案阶段开始介入,对铝板、陶板、擦窗机等系统进行多轮选型,同时配合方案造价及优化,与业主及建筑师各方精诚合作,助力项目品质落地。