南昌中微半导体生产研发基地
-
项目地址
南昌市
-
建设单位
南昌城微置业有限公司
-
建筑设计
信息产业电子第十一设计研究院科技工程股份有限公司
-
建筑面积
约14万㎡
南昌中微半导体生产研发基地

▲ 全景图
2023年7月7日,中微公司在南昌举办新厂落成仪式,宣布其旗下全资子公司南昌中微生产研发基地项目正式建成并投入使用。占地约130亩、总建筑面积约14万平方米的南昌中微新厂的落成,进一步提升了公司产品研发及生产能力,是中微公司发展历程中重要的里程碑,也是未来创新赋能聚势腾飞的新起点。
基地配备行业领先的实验室、洁净度达十级的高标准洁净室、先进的生产车间及高效的物流仓储中心,还为员工提供舒适的办公环境与休闲生活区域。
生产研发楼作为整个基地的主入口,建筑结构形式为钢筋混凝土框架结构,外立面包含铝板幕墙、玻璃幕墙、铝板雨篷、石材包柱、玻璃阳光房等多类别。

▲ 实景图
为实现外立面清爽通透的效果,研发楼主立面玻璃幕墙采用了数码打印技术,呈现出大鹏展翅的效果。
玻璃幕墙采用10(Low-E)+12A+10 中空超白钢化玻璃,非图案位置使用深浅两色数码打印,形成自然灵动的图案效果。

▲ 实景图
数码打印玻璃是通过数码打印机的系统识别处理图片,从而将陶瓷油墨按图案打印在玻璃表面,然后经烘干、钢化处理,将陶瓷油墨永久烧结于玻璃表面而得到一种耐用耐磨、抗UV辐射和高耐候性的新型玻璃材料 。数码打印玻璃的颜色丰富多彩,并不局限于单色或者双色。
数码打印方式生产的玻璃不论在油墨面质量、油墨层均匀性、光滑性、色彩丰富多样性以及工艺流程上都要优于传统的丝网与滚筒印刷。
它具备四个基本要素:PDF文件与图片、陶瓷油墨、玻璃数码打印机。油墨由秘锌鹏硅酸盐粉料组成,无有毒重金属,用无机色料在溶剂和有机聚合物的混合物中调色,油墨颜色主要有六种:白(W) 、黑 (K)、蓝 (C) 、红(M)、黄(Y)、绿(G),大多数颜色可由这六种油墨混合而成。

▲ 数码打印生产要素

▲ 加工流程
数码打印玻璃幕墙作为项目亮点,从方案阶段,设计人员与厂家技术人员通力配合,从打印区域选择、加工难易程度、效果呈现等各方面进行比选,精益求精,最终选定在非大鹏展示区进行数码打印。

▲ 打印区域选择

▲ 大鹏处打印效果比对

▲ 非大鹏处打印效果比对
对大鹏图案轮廓线效果优化,部分位置由直转曲,增强其灵动飘逸感。

▲ 方案优化过程版

▲ 方案优化最终版

▲ 图案优化
数码打印技术对于打印的图案无要求,图案覆盖率<50%或等于100%时,彩釉面可以位于夹胶中间。

▲ 玻璃结构
更多现场实景照片:

本项目包含一栋研发楼、三栋工业厂房,其中包含大量的金属幕墙夹芯板(三明治板) ,研发楼东、西、北立面及1#、2#、3#厂房等墙面均采用此材料。

▲ 效果图
金属幕墙夹芯板系统凭借其优异的保温、美观、防火、节能等性能,且立面形象充满现代科技感,与中微半导体高端科技形象契合。
在方案选择之初,担心面材经过长期风吹日晒雨淋发生锈蚀、褪色、表面脏污等情况,设计团队针对此情况对各面材厂家进行调研对比,实地考察,最终选用了性价比高的镀铝锌镁彩钢板,油漆采用特殊纳米强化聚脂(SRP)涂层和无机陶瓷颜料,并具备自洁功能。使用云母颜料的涂覆系统,不同角度呈现不一样的色彩光泽,在赋予钢板恒久美丽外观的同时,具有卓越的抗腐蚀性能和超长的使用寿命。

▲ 实景图
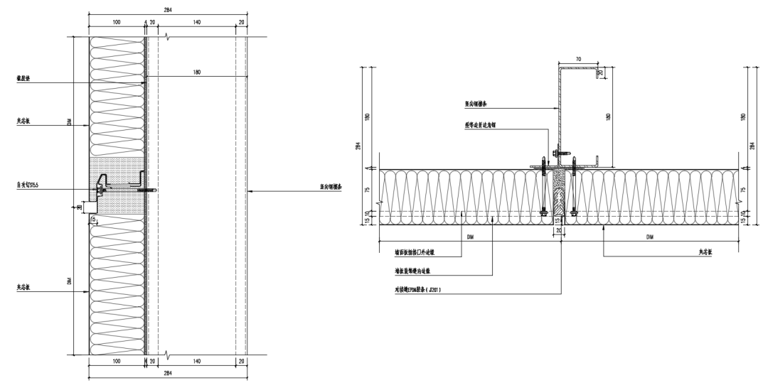
金属板的平整度影响整个建筑外立面的效果,因此三明治板的做法、分缝、以及各交接位置的收口处理做法至关重要。

▲ 标准节点
板材对接缝需采用带导水槽的高耐候EPDM柔性防水防冷桥胶垫,胶垫左右俩侧锯齿状,中部与板材对接缝咬合;板材之间扣合位置,需预注丁基胶,保证板与板之间的气密性和水密性。
同时,弗思特为本项目提供现场巡查服务,专业工管工程师和顾问工程师一同巡查,发现问题,依据相应的规范及规定,给出专业整改意见,并作出相应的风险提示。


▲ 部分巡查报告
现场巡查图片一览:

焕芯启程,聚势腾飞,南昌生产研发基地的落成,为公司不断提升研发及生产能力提供有力保障,也为持续高速、稳定、健康、安全的发展夯实基础。








