南京城北万象汇
-
项目地点
南京,江苏
-
建设单位
华润置地
-
建筑设计
3MIX 森摩建筑
南京城北万象汇是华润万象生活布局南京的第三子,也是深耕这座城市的集大成之作——担当城市北部新地标。这里是城市拥江发展的重要板块、长江大保护的典范之作,定位于南京主城北部滨江新城和城北现代服务业中心。

▲ 实景图
21万方的南京城北万象汇由东西两座购物中心组成,西区购物中心(A馆)定位为品质生活高地,东区购物中心(B馆)定位时尚潮流体验。规划3大主力店、5大核心业态、6大主题空间,是南京休闲、购物、运动、会友、遛娃、逛吃的一站式全业态消费目的地。
建筑立面延续了万象系列综合体简洁优雅的立面风格,并融合南京当地的文化元素,塑造出燕子矶新城的新地标形象。
为满足全业态需求,FORCITIS弗思特根据其商业综合体的外立面特性打造了多元化的幕墙系统,本项目涵盖了包括了多种类玻璃幕墙系统,此外还有陶板幕墙系统、铝板幕墙系统、雨篷系统、玻璃采光顶系统、金属吊顶系统等。以下是不同方位立面的幕墙系统介绍及其构造设计内容(举例)及亮点。
钢板肋点式玻璃幕墙
该幕墙位于32A西北角处,内侧是拥有1456㎡的真冰面的冰场场馆,也是南京最大且唯一的赛事及商业冰场。
外幕墙采用钢板肋点式夹具玻璃幕墙,立挺间隔1.8米布置,跨度12米。

▲ 标准节点图

▲ 室内视角
拉索幕墙给冰场带来了极致通透的视线,营造了一种沉浸式的冰场氛围,提高了室内冰场的观赏性和大众的游玩体验度。
橱窗幕墙系统
本项目橱窗系统主要分布于主入口与店铺上方,其中主入口跨度达15m。

▲ 施工现场图

▲ 节点图示意
橱窗幕墙采用双排龙骨设置,玻璃采用单夹层玻璃,兼顾安全的同时,保证效果通透。
此外,玻璃与背衬造型板预留600间隙,打造出灯盒效果的同时满足内部灯光检修需要。

▲ 实景图
采光顶幕墙系统
本项目采光顶采用多种样式,如矩形、三角形或不规则几何形体等,与场馆动线相匹配,增强中庭通透度,给人以大气宽阔之感。

▲ 左右滑动查看更多采光顶实景图
陶板幕墙系统位于A、B馆主立面三四层位置,立面采用竖向5mm、横向10mm开放系统,局部增设50mm宽铝合金凹槽,背衬 1.5mm厚镀锌钢板;


▲ 实景图
面材采用35mm厚拉槽面陶板,标准板块规格为1200x500mm,竖向龙骨采用120X60X5mm 热浸镀锌钢方管,横向龙骨采用50X50X4mm 热浸镀锌钢方管,使用铝合金挂件连接;面板表面涂刷自洁漆,龙骨热浸镀锌。
陶板立面板块采用模数排列形式:

▲ 立面局部放大图

▲ 标准断面示意图


▲ 标准节点图
为确保立面整体美观性,系统收边收口、各专业交圈处设计一般均为重点处理区域。
▲ 左右滑动查看更多节点图
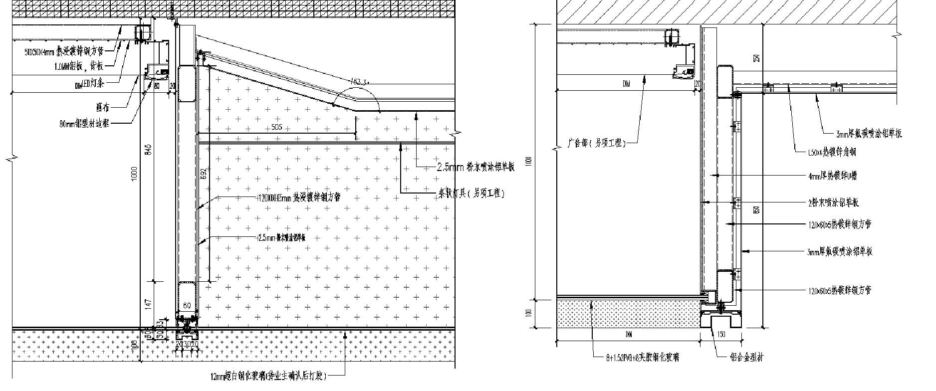
亮点1:部品间型材收边,提升建筑轮廓质感
广告位、LED、雨棚等型材线条压边,收边挺直、分缝少,遮挡铝板胶缝

▲ 呈现效果
亮点2:连桥系统
大连桥利用塔楼单元系统,模块化安装、助力提速、便于在不封路情况下快速施工

▲ 节点示意图


▲ 连桥实景图
亮点3:新材料探索,提质增效
立面新材料尝试;下沉广场低区墙面软瓷代替石材,满足效果同时,做到成本节降

▲ 节点示意图
亮点4:模块化铝板单元
铝板单元采用模块化设计,标准模块预先在工厂加工成整体后现场安装,确保安装精度及现场施工效率


▲ 示意图

▲ 节点示意图
亮点5:蜂窝铝板
屋顶花园雨棚悬挑距离大,为了确保底面完整性及平整度,在材料上选择了蜂窝铝板,面板接缝采用插接的开缝设计

▲ 实景图

▲ 安装细节图
更多实景图欣赏:
▲ 左右滑动查看更多
当古城韵味与新城潮涌不期而遇,南京城北万象汇立足燕子矶,与城市发展翻涌共进,从“秦淮河时代”迈向“长江时代”,作为目前全中国最大的万象汇,“巨无霸”期待你来打卡。









